欢迎您访问北京北德电气有限公司网站!

销售热线:010-87301116 87302929

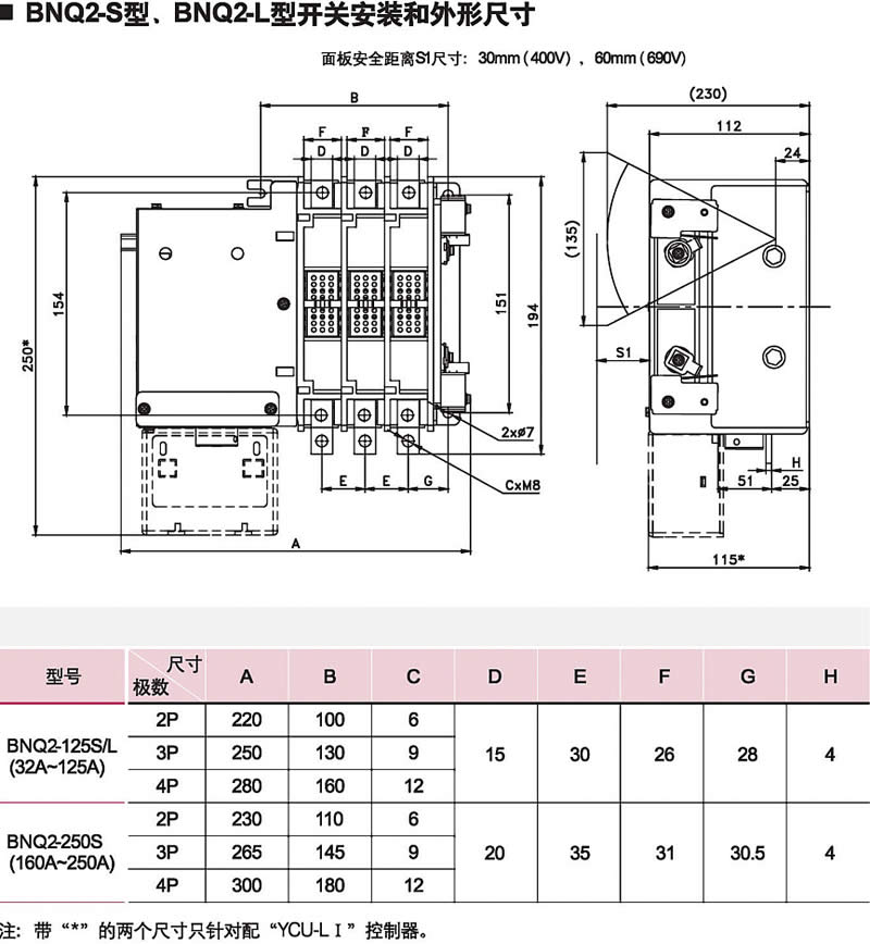
BNQ2系列双电源自动转换开关

您的当前位置:首页 > BNQ2系列双电源自动转换开关

S型自动转换开关(三段式)